;

Triton Park | Ochota | Recepcja | 0% Prowizji

lokalizacja: Warszawa, Grójecka

1 069 000,00 PLN

18 118,64 PLN

Opis nieruchomości

Szukasz komfortowego mieszkania w prestiżowej inwestycji na warszawskiej Ochocie? Zapraszam do Triton Park przy ul. Grójeckiej - apartamentowca o podwyższonym standardzie, który oferuje pełną infrastrukturę i bezpieczeństwo w jednym miejscu.

0% PROWIZJI: Jako agent nie pobieram wynagrodzenia od strony Kupującej -  dzięki czemu na start oszczędzasz kilkanaście tysięcy złotych w porównaniu do innych ofert agencyjnych! 

O INWESTYCJI - TRITON PARK (2009 r.):

To nie jest zwykły blok, to kompleks zaprojektowany z myślą o najwyższej wygodzie mieszkańców:

Bezpieczeństwo: Teren zamknięty, całodobowa ochrona oraz reprezentacyjna recepcja.

Części wspólne: Pięknie zagospodarowane patio z oczkiem wodnym i bezpiecznym placem zabaw.

Wygoda: Bezpośrednio w budynku znajdują się liczne lokale usługowe, w tym Biedronka, do której udasz się nie wychodząc na zewnątrz - idealne rozwiązanie w deszczowe dni.

O MIESZKANIU:
Mieszkanie o powierzchni 58,80 m² znajduje się na 4. piętrze w 11-piętrowym apartamentowcu. W mieszkaniu założona jest klimatyzacja. 

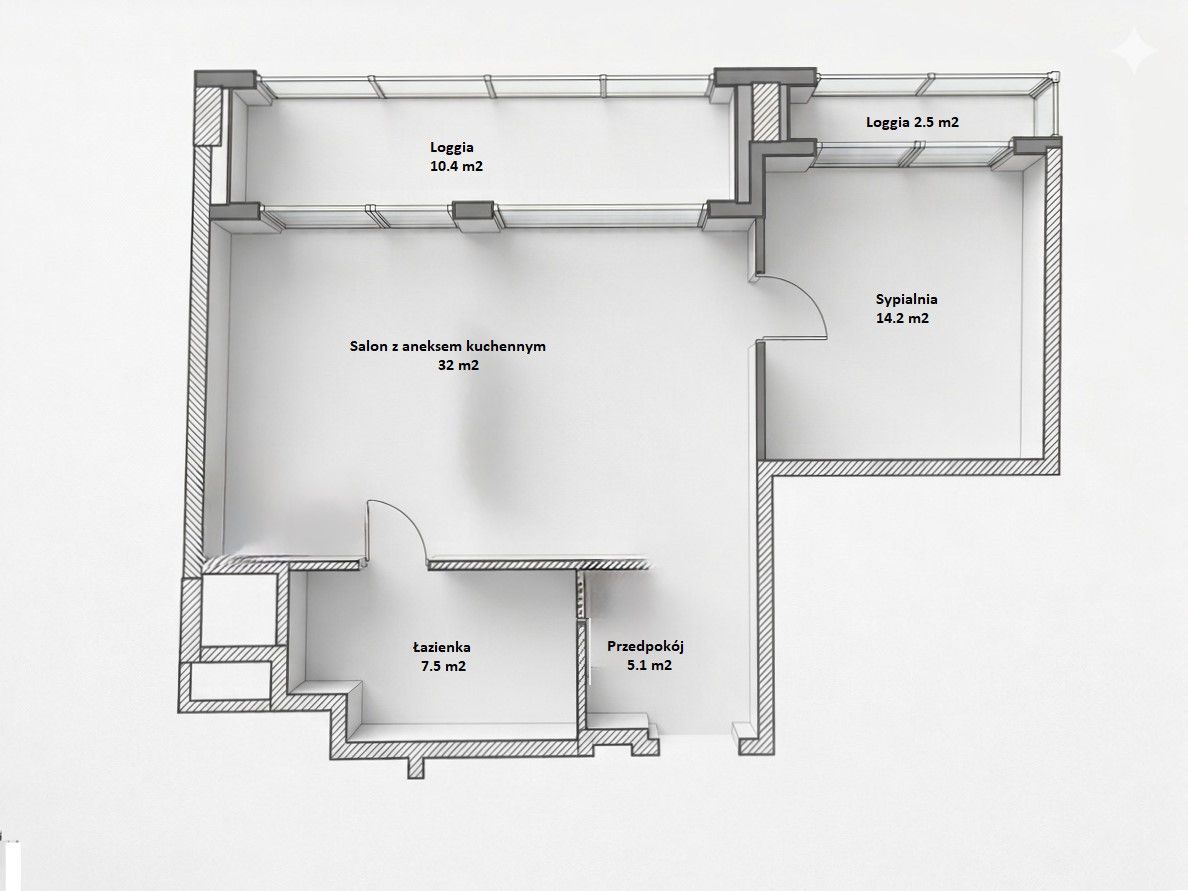
Powierzchnie pomieszczeń:
- Salon 21,3 m2 (północny zachód)
- Sypialnia 14,2 m2 (północny zachód)
- Kuchnia 10,7 m2 (północny zachód)
- Łazienka 7,5 m2
- Przedpokój 5,1 m2
- Loggia (wyjście z salonu) - 10,4 m2 (północny zachód)
- Loggia (wyjście z sypialni) - 2,5 m2 (północny zachód) 

Układ: 2 przestronne pokoje, które dzięki dużej powierzchni dają poczucie swobody i wiele możliwości aranżacyjnych.

Standard: Budynek charakteryzuje się wysoką jakością wykończenia części wspólnych 

LOKALIZACJA - SERCE OCHOTY:
ul. Grójecka to jedna z najlepiej skomunikowanych arterii Warszawy:

Komunikacja: Przystanki tramwajowe i autobusowe tuż przy wyjściu z osiedla - dojazd do Centrum zajmuje ok. 15 minut. Bliskość stacji PKP/SKM Rakowiec.

Rekreacja: W bliskim sąsiedztwie znajduje się Park Szczęśliwiecki - idealne miejsce na jogging, spacer czy wypad na narty/rower wodny.

Infrastruktura: Wokół pełen wybór restauracji, kawiarni, siłowni i punktów medycznych.

Miejsce parkingowe: Do mieszkania przynależy miejsce w garażu podziemnym (płatne dodatkowo).

Komórka lokatorska: Dodatkowa przestrzeń do przechowywania (płatna dodatkowo).

STAN PRAWNY

- Pełna własność
- Założona Księga Wieczysta
- Możliwość kredytowania

DLACZEGO WARTO?
Mieszkanie w Triton Park to doskonała lokata kapitału. Wysoki standard wykończenia budynku, obecność recepcji i świetna lokalizacja sprawiają, że nieruchomości w tej inwestycji bardzo dobrze trzymają wartość i cieszą się ogromnym popytem wśród najemców korporacyjnych.

Zapraszam na prezentację.

Jeżeli zakup wiąże się ze sprzedażą Twojej nieruchomości - zadzwoń do mnie, z przyjemnością przeprowadzę Cię przez ten proces.

 Plusy współpracy z nami:


• Jesteśmy licencjonowanym biurem nieruchomości, należymy do PFRN i WSPON
• Dajemy Gwarancję Ochrony Prawnej
• Posiadamy Doświadczonych Doradców
• Nasz dział finansowy posiada największy wybór kredytów hipotecznych na rynku, przy zakupie bezpłatnie pomoże Ci w uzyskaniu najtańszego kredytu
• ZAPYTAJ KONIECZNIE DORADCĘ O PROMOCYJNY PAKIET USŁUG OBNIŻAJĄCY KOSZTY ZAKUPU!


Plan Nieruchomości

Kontakt do opiekuna:

Alfa Home Sp. z o.o.

Dariusz Dymek
Nieprawidłowy adres E-mail
Mapa

Strona korzysta z plików cookie w celu realizacji usług zgodnie z Polityką prywatności. Możesz określić warunki przechowywania lub dostępu do cookie w Twojej przeglądarce.